|
進口低溫止回閥
品牌:美國威盾VTON
進口低溫止回閥是指用于低溫液體(主要包括液氧、液氮、液氬、液態烴和液化天然氣等)貯運設備的管理系統中防止低溫介質倒流的閥門。主要應用于氣體液化設備、空分設備;天然氣液化、儲運設備;液態氧、氮、氬、氫、二氧化碳低溫貯槽及槽車;變壓吸附制氧、氮設備。廣泛應用于能源、石化、冶金、航天、核工業、鐵道等行業等行業。
Low-temperature flange valve
|
|
項目 |
設計與制造 |
結構長度 |
法蘭標準 |
檢驗與試驗 |
|
標準 |
API600 JB/T7749 |
ANSI B16.10 GB12221 |
ANSI B16.5 JB79 |
API 598 GB/T13927 |
主要零部件材質
|
零件名稱 |
閥體、閥蓋 |
閘板、閥座、閥桿 |
填 料 |
|
材料 |
A352-LCB A352-LC3 A351-CF8 |
A182-F304 |
聚四氟乙烯 |
主要性能規范
|
型號 |
公稱壓力 |
常溫試驗壓力(MPa) |
低溫試驗壓力(MPa) |
工作溫度及適用介質 |
|
殼體 |
密封(氣) |
上密封 |
|
VS4A4-1-FHCL |
16 |
3.0 |
0.6 |
2.2 |
0.6 |
-46℃氨液、氨、丙烷 |
-101℃乙烯、二氧化碳 |
-196℃甲烷、氮氣、液化天然氣 |
|
VS4A4-2-FHCL |
40 |
7.5 |
0.6 |
5.5 |
0.6 |
|
VS4A4-3-FHCL |
100 |
15.0 |
0.6 |
11.0 |
0.6 |
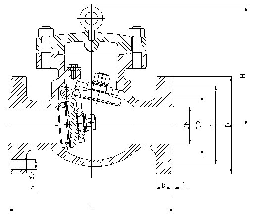
結構外形圖

主要外形尺寸和連接尺寸
|
公稱通徑 |
尺 寸 |
|
mm |
in |
L |
D |
D1 |
D2 |
b |
f |
n-Φd |
H |
|
VS4A4-1-FHCL |
|
50 |
2 |
203 |
152 |
120.5 |
92 |
16 |
1.6 |
4-19 |
180 |
|
80 |
3 |
241 |
192 |
152.5 |
127 |
19 |
1.6 |
4-19 |
190 |
|
100 |
4 |
297 |
229 |
190.5 |
157 |
24 |
1.6 |
8-19 |
203 |
|
125 |
5 |
330 |
254 |
216 |
186 |
24 |
1.6 |
8-22 |
229 |
|
150 |
6 |
356 |
279 |
241.5 |
216 |
26 |
1.6 |
8-22 |
257 |
|
200 |
8 |
495 |
342 |
298.5 |
270 |
29 |
1.6 |
8-22 |
292 |
|
250 |
10 |
622 |
406 |
362 |
324 |
31 |
1.6 |
12-25 |
355 |
|
300 |
12 |
698 |
483 |
432 |
381 |
32 |
1.6 |
12-25 |
396 |
|
VS4A4-2-FHCL |
|
50 |
2 |
267 |
165 |
127 |
92 |
23 |
1.6 |
8-19 |
178 |
|
80 |
3 |
318 |
210 |
168.5 |
127 |
29 |
1.6 |
8-22 |
216 |
|
100 |
4 |
356 |
254 |
200 |
157 |
32 |
1.6 |
8-22 |
241 |
|
125 |
5 |
400 |
279 |
235 |
186 |
35 |
1.6 |
8-22 |
267 |
|
150 |
6 |
444 |
318 |
270 |
216 |
37 |
1.6 |
12-22 |
305 |
|
200 |
8 |
533 |
381 |
330 |
270 |
42 |
1.6 |
12-25 |
368 |
|
250 |
10 |
622 |
445 |
387 |
324 |
48 |
1.6 |
16-29 |
394 |
|
300 |
12 |
711 |
521 |
451 |
381 |
51 |
1.6 |
16-32 |
445 |
|
VS4A4-3-FHCL |
|
50 |
2 |
295 |
165 |
127 |
92 |
33 |
6.4 |
8-19 |
203 |
| |